Bungalov 0(1+kk)
Nejmenší z našich katalogových tinyhousů se hodí nejen pro rekreační účely. Představuje ideální řešení například pro mladé lidi nebo seniory, kteří touží po úsporném a energeticky nenáročném bydlení ve vlastním domě, ale mají k dispozici jen omezený rozpočet. Je to vlastně garsonka pojatá jako domeček. A vejde se snad na každý pozemek.
Ke stažení: KATALOG STAVBY Bungalov 0
PLOCHA
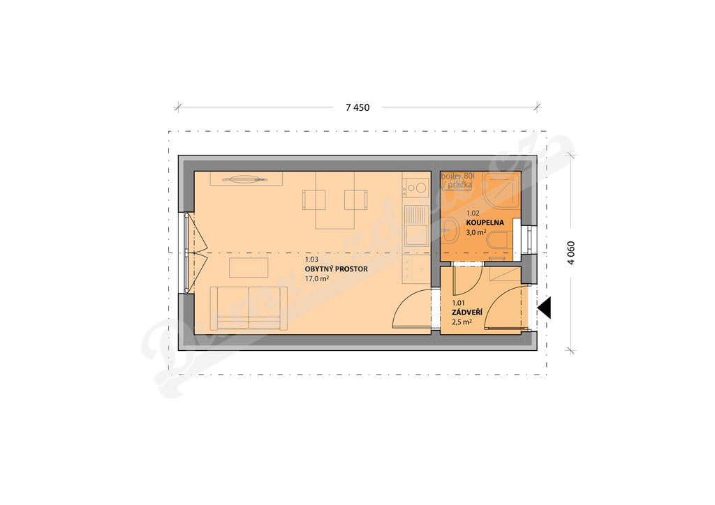
| zastavěná plocha | 30,3 m2 |
| užitná plocha | 22,5 m2 |
| obytná plocha | 17,2 m2 |
DISPOZICE DOMU
1+KK
Vstupní hala, obytný prostor s kuchyní a se vstupem na terasu, koupelna s toaletou
VSTUP NA ZAHRADU
francouzské okno
FASÁDA
kombinace standardní fasády a palubkového obkladu
STŘECHA
20 stupňů, sedlová s přesahy do boků domu
PROJEKT K DOMU ZDARMA
Vypracujeme projekt pro povolení stavby a pomůžeme vám se stavebním řízením.
| hrubá stavba | 720 800 Kč |
| stavba k dokončení | 1 225 200 Kč |
| stavba na klíč | 1 282 800 Kč |
Uvedené ceny jsou bez DPH. Nezahrnují základovou desku ani hydroizolaci a platí pro standardní provedení dřevostavby.
DOPRAVA DO 50 KM ZDARMA.KLIENTSKÉ ÚPRAVY
Přejete si jen trochu jinou střechu, okna nebo fasádu? Nabízíme i další varianty, pro které vám po dohodě vypracujeme přesnou individuální kalkulaci. Rádi přizpůsobíme náš projekt vašim představám nebo požadavkům místních předpisů. K domu přistavíme pergolu, garážové stání nebo terasu.
Podobné projekty z naší nabídky
KONTAKTUJTE NÁS
Zaujala vás tato dřevostavba?
Napište nám nezávaznou poptávku - rádi zodpovíme vaše dotazy.