Bungalov 0+(1+kk)
Poklud se nevejdete do Bungalovu 0, nemusíte si zoufat – máme pro vás o 8 metrů čtverečních větší variantu. Dispozice zůstává stejná, jen obytná místnost s kuchyní a koupelna nabízejí více prostoru. Pokud by vám to bylo pořád málo, doporučujeme doplnit minidům o typovou pergolu, která rozšíří užitný prostor na čerstvý vzduch.
Ke stažení: KATALOG STAVBY Bungalov 0+
PLOCHA
| zastavěná plocha | 37,9 m2 |
| užitná plocha | 29,1 m2 |
| obytná plocha | 21,6 m2 |
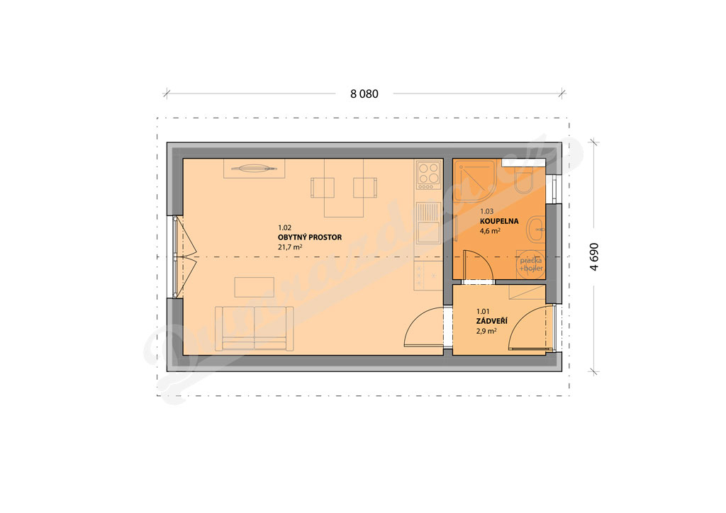
DISPOZICE DOMU
1+KK
Vstupní hala, obytný prostor s kuchyní a se vstupem na terasu, koupelna s toaletou
VSTUP NA ZAHRADU
francouzské okno
FASÁDA
kombinace standardní fasády a palubkového obkladu
STŘECHA
20 stupňů, sedlová s přesahy do boků domu
REALIZACE
Bungalov 0+ - Holušice - 2021PROJEKT K DOMU ZDARMA
Vypracujeme projekt pro povolení stavby a pomůžeme vám se stavebním řízením.
| hrubá stavba | 821 600 Kč |
| stavba k dokončení | 1 466 300 Kč |
| stavba na klíč | 1 569 000 Kč |
Uvedené ceny jsou bez DPH. Nezahrnují základovou desku ani hydroizolaci a platí pro standardní provedení dřevostavby.
DOPRAVA DO 50 KM ZDARMA.KLIENTSKÉ ÚPRAVY
Přejete si jen trochu jinou střechu, okna nebo fasádu? Nabízíme i další varianty, pro které vám po dohodě vypracujeme přesnou individuální kalkulaci. Rádi přizpůsobíme náš projekt vašim představám nebo požadavkům místních předpisů. K domu přistavíme pergolu, garážové stání nebo terasu.
Podobné projekty z naší nabídky
KONTAKTUJTE NÁS
Zaujala vás tato dřevostavba?
Napište nám nezávaznou poptávku - rádi zodpovíme vaše dotazy.